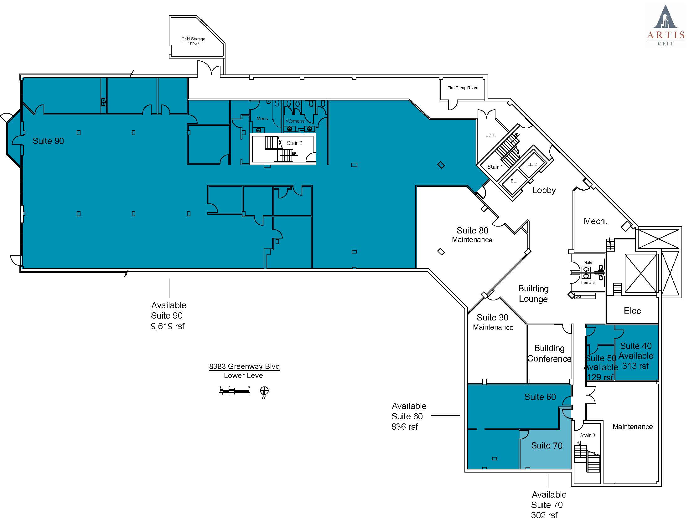
8383 Greenway Boulevard - Suite 90
| Property | Type | Available |
|---|---|---|
| 8383 Greenway Boulevard | Office for Lease | 9519 sq ft |
9,519 square feet on the first floor, facing the large parking lot is now available. Great for lab or traditional office. Up to 1,200 square feet of additional secured storage is also available and can be added to any lease. This building offers 6 stories and 89,242 square feet of Class-A office space. Located in the West Madison/Middleton business community, in the heart of the Greenway Station retail center.
LOCATION: Located just blocks from the West Beltline Highway 12/14 with quick access to the west and southern suburbs. This site offers unmatched access and visibility. Retail, restaurants and hotel accommodations all with in walking distance. During the spring and summer, tenants enjoy the farmers’ market and walking/bike paths.
AMENITIES: Conference centers, board rooms, full-service cafeteria, no-fee fitness center, card access, fiber optics, large surface parking lot, first class property management and 24/7 emergency response system.
