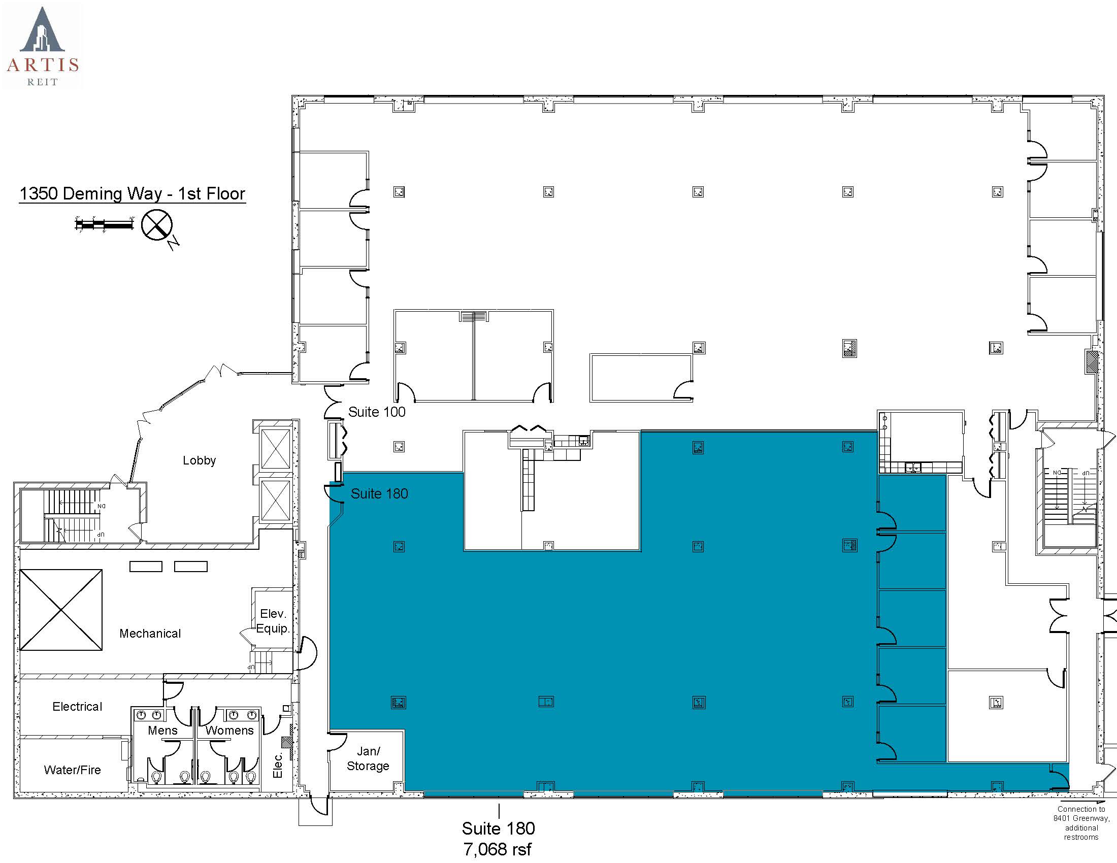
1350 Deming Way – Deming Park Building - Suite 180
| Property | Type | Available |
|---|---|---|
| 1350 Deming Way – Deming Park Building | Office for Lease | 7068 sq ft |
7,068 square feet on the first floor of 1350 Deming Way. This suite boasts 5 offices and wide open workspace for your team to collaborate. Bring in your own designer or work with our in-house staff to make it truly one-of-a-kind. 1350 Deming Way is a 4 story, 70,000 square feet of Class-A office building, located in the West Madison/Middleton business community, in the heart of the Greenway Station retail center.
LOCATION: Located just blocks from the West Beltline Highway 12/14 with quick access to the west and southern suburbs. This site offers unmatched access and visibility. Retail, restaurants and hotel accommodations all with in walking distance. During the spring and summer, tenants enjoy the farmers’ market and walking/bike paths.
AMENITIES: 1350 Deming Way is directly connected to all the Artis REIT amenities in Greenway; including underground parking, conference centers, board rooms, full-service cafeteria, no-fee fitness center, card access, fiber optics, large surface parking lot, first class property management, on-site maintenance staff and 24/7 emergency maintenance response.
